M93 - Офис с видами на море и горы в Лимассоле
Статус недвижимости:
Объект сдан
Расположение:
Кипр, Лимассол, Центральная часть старого горада Лимассола
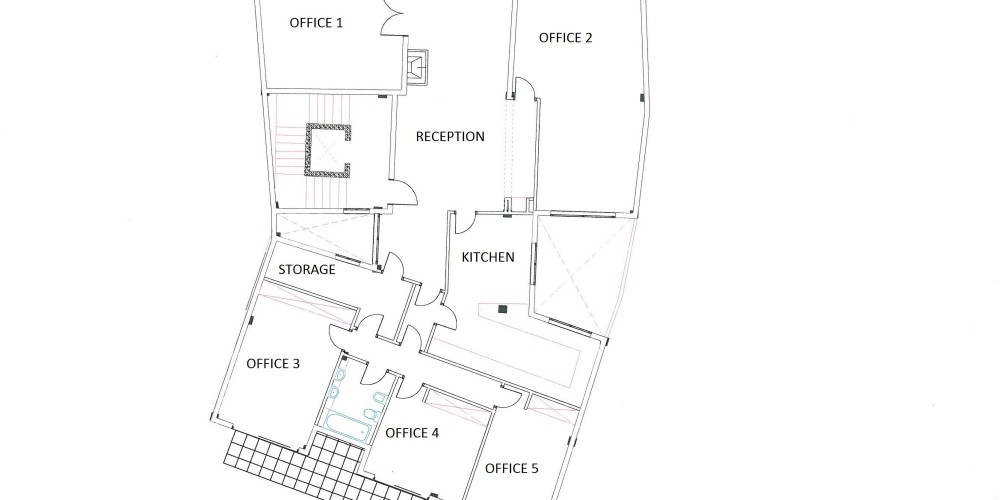
Этот офис (пентхаус) расположен в центре Лимассола. Из офиса открываются виды на море и старый город, а также панорамные виды на горы Тродос. В офисе 5 отдельных комнат, 2 ванные комнаты и приемная (ресепшн). Офис в хорошем состоянии, с центральным отоплением и кондиционерами. Недвижимость имеет долгосрочную аренду с фиксированной арендной платой 3000 евр...
Этот офис (пентхаус) расположен в центре Лимассола. Из офиса открываются виды на море и старый город, а также панорамные виды на горы Тродос. В офисе 5 отдельных комнат, 2 ванные комнаты и приемная (ресепшн). Офис в хорошем состоянии, с центральным отоплением и кондиционерами. Недвижимость имеет долгосрочную аренду с фиксированной арендной платой 3000 евро в месяц - 36000 евро в год. Доступны титулы. Пентхаус также можно превратить в квартиру, так как он был частной резиденцией до превращения его в офис.
Площади и Цены
Юниты проданы либо зарезервированы.
Продано & Зарезервировано
1
- Офис
Спальни:
Площадь:
220 m2
Продано
Расположение на карте
Схемы и планы
Погода
3
Декабря
2025













