Q65 - Здание коммерческого назначения в центре Лимассола
Это коммерческое здание состоит из офисных и торговых помещений в самом центре Лимассола.
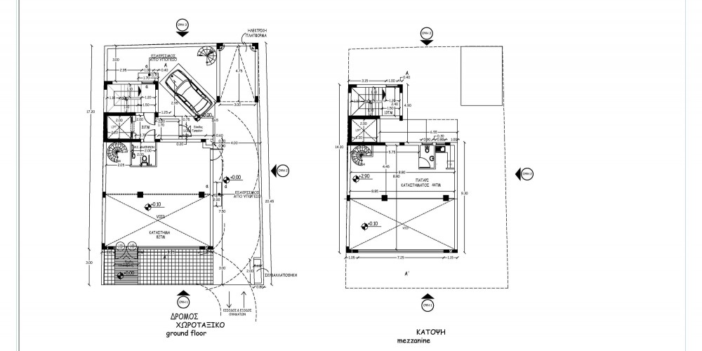
Это современное и элегантное здание, оборудованное подземной парковкой, доступ к которой осуществляется через электрическую платформу, состоит из 4 этажей и подвала. На первом этаже расположены вестибюль и двухуровневое торговое пространство, которые идеально подходят для выставочного зала, а на втором, третьем и четвертом этажах расположены элегантные офисные помещения с садом на крыше, откуда открывается вид на город.
Здание расположено в самом сердце коммерческого центра Лимассола. Здесь есть все необходимое для ведения бизнеса. Старый центр города находится в нескольких шагах от здания.
Проект имеет сертификат энергоэффективности Class "B".
Юниты проданы либо зарезервированы.














