S549 - Здание с роскошными офисами открытой планировки для инвестиций в коммерческом районе Лимассола
Статус недвижимости:
Строительство завершено
Расположение:
Кипр, Лимассол, Центральная часть старого горада Лимассола
Коммерческое здание в центре Лимассола, в одном из самых коммерческих и космополитичных районов города.
Роскошные офисы открытой планировки, по одному на каждом этаже, и розничные магазины/выставочные залы с мезонинами на первом этаже.
Ресепшн
Сад на крыше с Sky Lounge
Интернет
Сигнализация на каждом эт...
Коммерческое здание в центре Лимассола, в одном из самых коммерческих и космополитичных районов города.
Роскошные офисы открытой планировки, по одному на каждом этаже, и розничные магазины/выставочные залы с мезонинами на первом этаже.
- Ресепшн
- Сад на крыше с Sky Lounge
- Интернет
- Сигнализация на каждом этаже
- Система видеонаблюдения
- Кондиционер – система VRV на каждом этаже
- Детектор дыма
- Перегородки
- Подвесной потолок.
Проект имеет сертификат энергоэффективности Class "B".
Площади и Цены
Юниты проданы либо зарезервированы.
Продано & Зарезервировано
CBLD
- Коммерческое здание
Спальни:
Площадь:
6321 m2
Продано
Расположение на карте
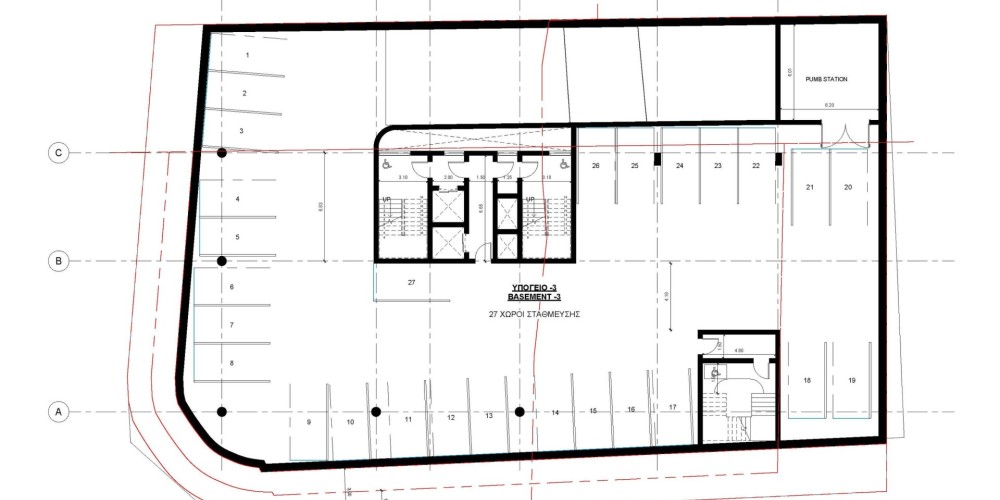
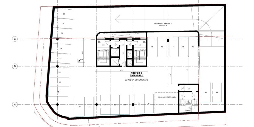
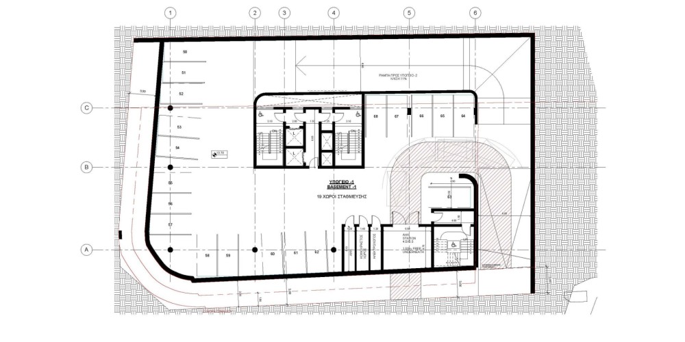
Схемы и планы



















