T051 - Жилое здание в районе Новой Марины в Ларнаке
Статус недвижимости:
Строительство завершено
Расположение:
Кипр, Ларнака, район порта




Квартиры в районе Новой Марины, недалеко от центра Ларнаки. Проект будет состоять из квартир с 1 и 2 спальнями. Квартиры на верхнем этаже будут иметь террасы на крыше.
Каждая квартира будет иметь парковочное место.
Проект имеет сертификат энергоэффективности Class "A".
Площади и Цены
Юниты проданы либо зарезервированы.
Продано & Зарезервировано
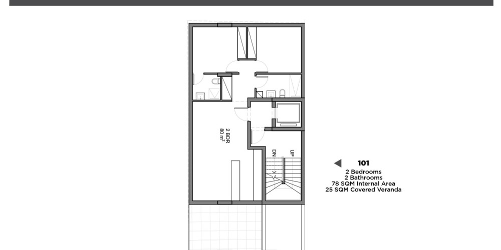
101
- Апартаменты
Спальни:
2
Площадь:
103 m2
Продано
201
- Апартаменты
Спальни:
1
Площадь:
50 m2
Продано
202
- Апартаменты
Спальни:
1
Площадь:
56 m2
Продано
301
- Апартаменты
Спальни:
1
Площадь:
80 m2
Продано
302
- Апартаменты
Спальни:
1
Площадь:
84 m2
Продано
Расположение на карте
Похожие объекты
S554 - Здание с магазинами и квартирами за 15 минут ходьбы до пляжа с голубым флагом Финикудес в Ларнаке
S679 - 20-этажная башня с общим бассейном, открытой детской игровой площадкой, тренажерным залом и площадкой для тенниса в Ларнаке (500 метров до моря)
Заголовок
X




