B219 - 2-bedroom apartment in the Aradippou area of Larnaca








This residential complex offers six apartments in the Aradippou area of Larnaca, within walking distance of a major supermarket and just 1 km from the Metropolis Mall.
The left-side units feature two bedrooms, including an ensuite bathroom and an additional guest bathroom. These apartments include an open-plan kitchen and living area, with a total covered area of 78 m² and an additional 20 m² covered veranda.
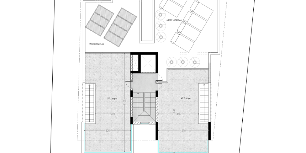
On the right side, the development includes three-bedroom apartments, each with a covered area of 96 m² and a 20 m² covered veranda. Top-floor apartments on both sides come with private 50 m² rooftop terraces, offering additional outdoor space.
All apartments include private covered parking and a dedicated storage unit. The project is located near private schools, such as the American Academy, and provides direct access to main highways leading to Nicosia, Limassol, Paphos, and Ammochostos.
Designed by a professional team of architects and engineers, the building includes features such as Italian ceramic finishes, glass balconies, and layouts focused on privacy and usable space. A photovoltaic system will be installed to supply renewable energy through net metering, contributing to energy efficiency and reducing electricity costs.
The main features of the project and the units:
- Location: Aradippou, Larnaca
- Six apartments total
- Two-bedroom units: 78 m² covered area + 20 m² veranda
- Three-bedroom units: 96 m² covered area + 20 m² veranda
- Top-floor apartments include 50 m² private roof terraces
- Private covered parking and storage for each unit
- Walking distance to Lidl and 1 km from Metropolis Mall
- Near private schools and major highways
Energy efficiency grade “A” with photovoltaic system for net metering
All units sold or reserved.
S690 - A development, offering 2 and 3 bedroom apartments as well as commercial units, in Aradippou, Larnaca
B042 - 1-2 bedroom apartments with balconies in a residential development with a swimming pool in Larnaca
S839 - The development, located in central Larnaca, offering 2 and 3 bedroom apartments with contemporary designs





