Q81 - Residential Building with studio apartments in Old Town of Limassol for investment
Property status:
Project delivered
Location:
Cyprus, Limassol (the central part of Limassol)













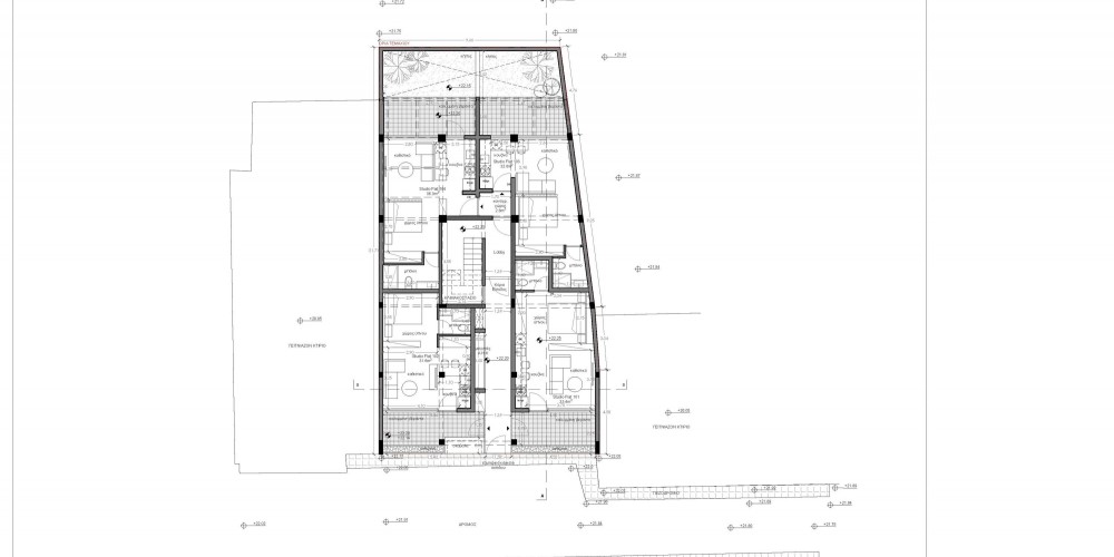
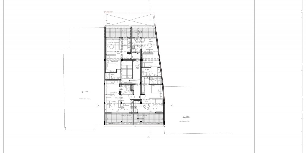
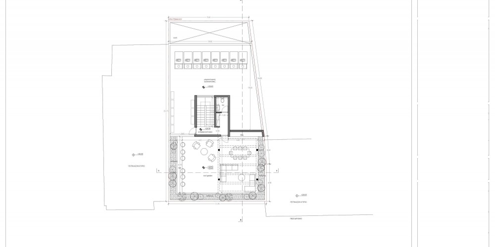
The development features 8 studio apartments, just a few meters from Cyprus Technical University and the upcoming Brown Hotel on Anexartisias street. The project includes common roof top featuring a barbeque and lounge area.
The price of the building bears no VAT as the buyer can acquire the SPV.
The building can be managed by a Management...
The development features 8 studio apartments, just a few meters from Cyprus Technical University and the upcoming Brown Hotel on Anexartisias street. The project includes common roof top featuring a barbeque and lounge area.
The price of the building bears no VAT as the buyer can acquire the SPV.
The building can be managed by a Management Company for any potential buyer with guaranteed 6% ROI per annum for a period of 5 years.
The Project has EPC certificate with "A" Energy Efficiency Rating.
Area & Prices
All units sold or reserved.
Sold & Reserved Properties
Bld
- Block of apartments
Beds:
Area:
382 m2
Sold
Map Location
Related Projects
G38 - Complex of apartments, penthouses and two commercial buildings in Limassol first line to the sea.
S529 - Offices with the sea views from all the floors of the building in the heart of the center of Limassol
S804 - Investment opportunity with 10 well designed apartments in just 260 meters from the sea in Old town of Limassol
B155 - Apartments in a development with a gym, spa, a heated rooftop infinity pool with sea views in the Limassol’s Old Town
Заголовок
X




