S804 - Investment opportunity with 10 well designed apartments in just 260 meters from the sea in Old town of Limassol
Property status:
Project delivered
Location:
Cyprus, Limassol (the central part of Limassol)
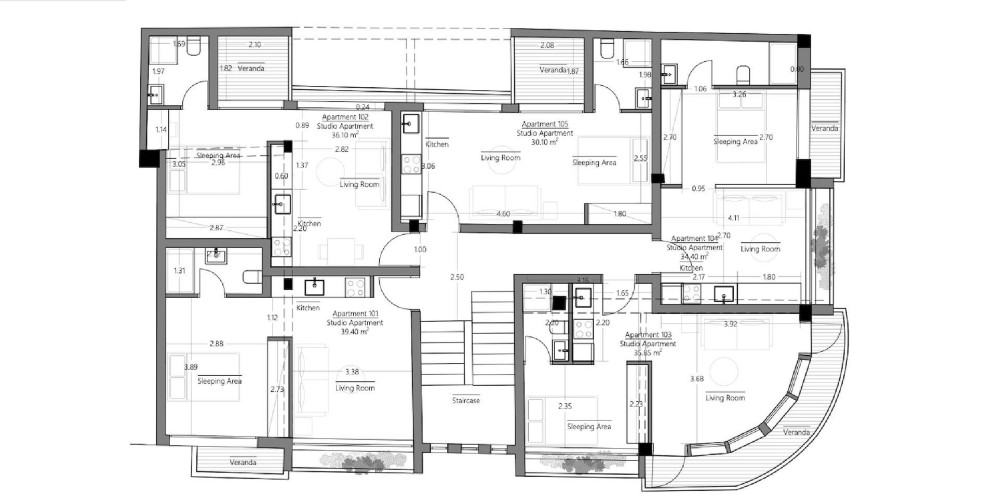
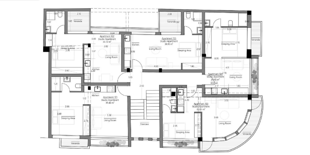
This investment opportunity offers 10 exquisitely designed apartments, including 1 studio, eight 1 bedroom apartments, and 1 two bedroom apartment, tailored for contemporary urban living and promising rental potential.Nestled on a parallel street to the main street of old town, residents are steps away from the bustling heart of Limassol&rsquo...
This investment opportunity offers 10 exquisitely designed apartments, including 1 studio, eight 1 bedroom apartments, and 1 two bedroom apartment, tailored for contemporary urban living and promising rental potential.
Nestled on a parallel street to the main street of old town, residents are steps away from the bustling heart of Limassol’s city centre, surrounded by cafes, boutique shops and cultural landmarks. The sea is just in 260 metes from the development.
Area & Prices
All units sold or reserved.
Sold & Reserved Properties
AB
- Block of apartments
Beds:
Area:
438 m2
Sold
001A
- Apartment
Beds:
2
Area:
64 m2
Sold
001B
- Apartment
Beds:
1
Area:
44 m2
Sold
002A
- Apartment
Beds:
1
Area:
43 m2
Reserved
002B
- Apartment
Beds:
1
Area:
44 m2
Reserved
003
- Apartment
Beds:
1
Area:
8 m2
Reserved
101A
- Apartment
Beds:
1
Area:
43 m2
Reserved
101B
- Apartment
Beds:
1
Area:
45 m2
Reserved
102A
- Apartment
Beds:
1
Area:
48 m2
Reserved
102B
- Apartment
Beds:
1
Area:
62 m2
Reserved
Map Location
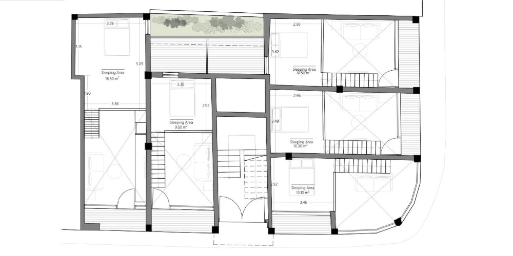
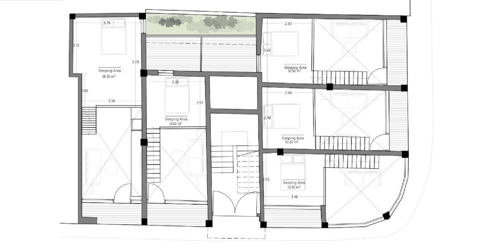
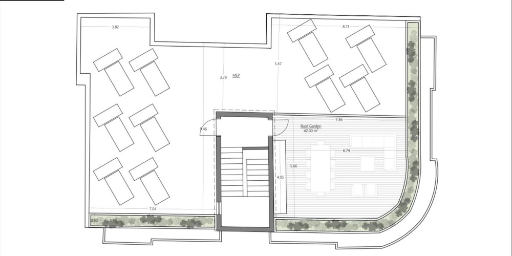
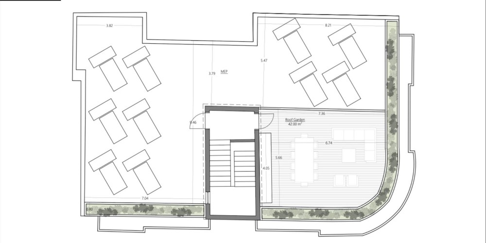
Site Map & Floor Plans
Weather
15
November
2025








