A0253 - Современные апартаменты в районе Omonoia, Лимассол
Статус недвижимости:
Строительство завершено
Расположение:
Кипр, Лимассол, недалеко от нового морского порта










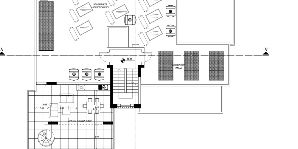
Проект расположен в западной части Лимассола, рядом с Новым Казино и торговым центром. Он включает в себя 8 квартир с современным дизайном интерьера с 1 и 2 спальнями. В каждой квартире есть просторные террасы, кладовая и парковка.
Проект имеет сертификат энергоэффективности Class "B".
Площади и Цены
Юниты проданы либо зарезервированы.
Продано & Зарезервировано
301
- Апартаменты
Спальни:
3
Площадь:
131 m2
Продано
Расположение на карте
Похожие объекты
S601 - Жилое здание в оживленном районе Агиос Иоаннис, в непосредственной близости от пристани Лимассола
S860 - Современное офисное здание, сочетающее в себе инновации, функциональность и элегантность, расположено недалеко от нового морского порта в Лимассоле
Заголовок
X





