Q16 - Квартиры в непосредственной близости от порта в Лимассоле
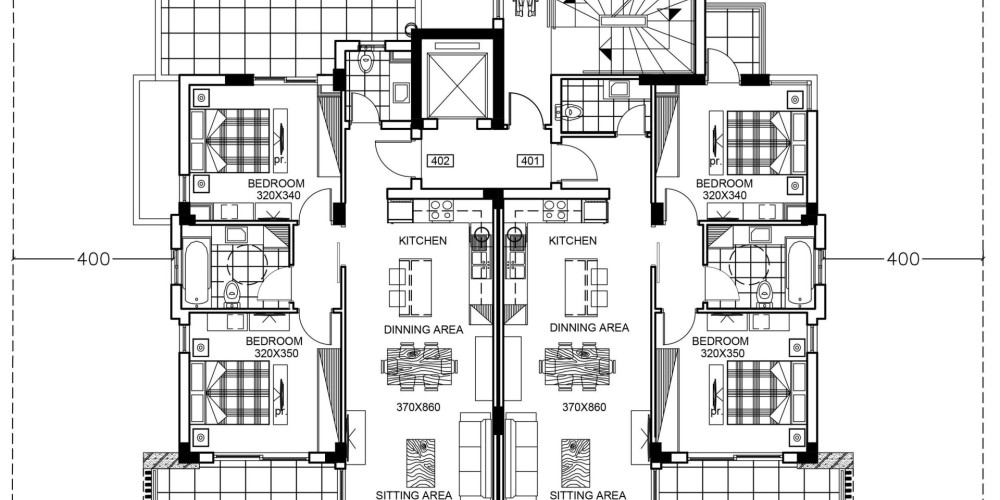
В проекте всего девять квартир, равномерно расположенных на трех этажах.
С больших балконов, окруженных стеклянными перилами, открывается вид на город, что позволяет жителям расслабиться и насладиться видом из уединения собственного дома. Каждая из девяти квартир состоит из двух спален, будет иметь крытую парковку и кладовую.
Квартиры просторны и отделаны высококачественными материалами. Кухня и гостиная открытой планировки могут похвастаться паркетными полами и блестящими мраморными столешницами, а также большим количеством места и места для хранения вещей, чтобы в полной мере использовать каждое из этих пространств. Через большие окна проникает естественный свет.
Проект имеет сертификат энергоэффективности Class "B".
Юниты проданы либо зарезервированы.









