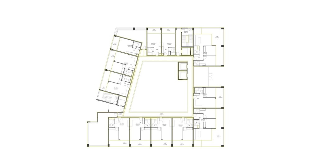
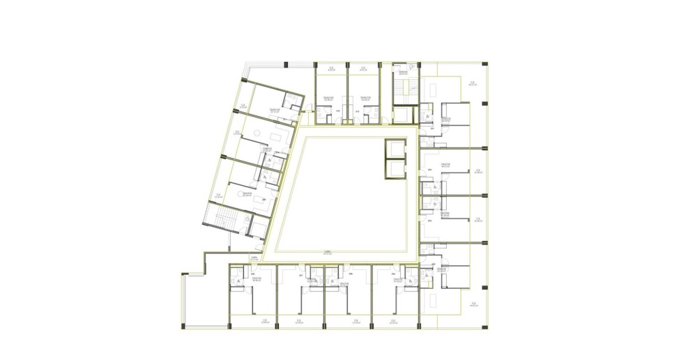
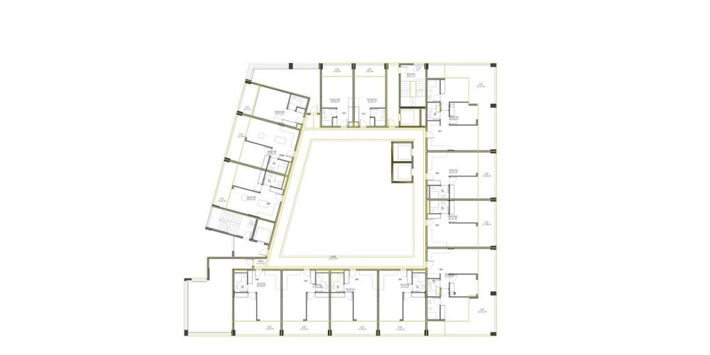
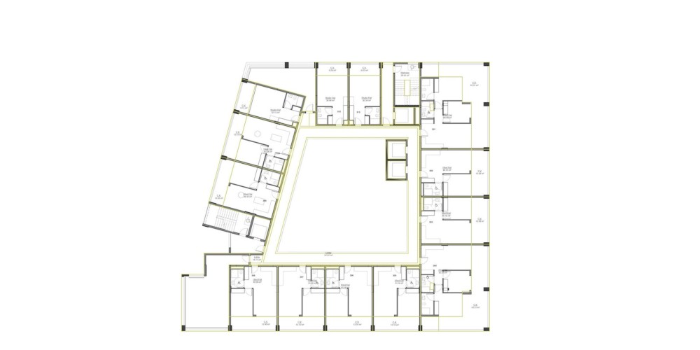
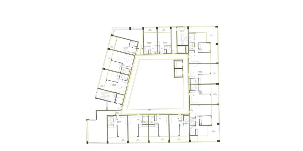
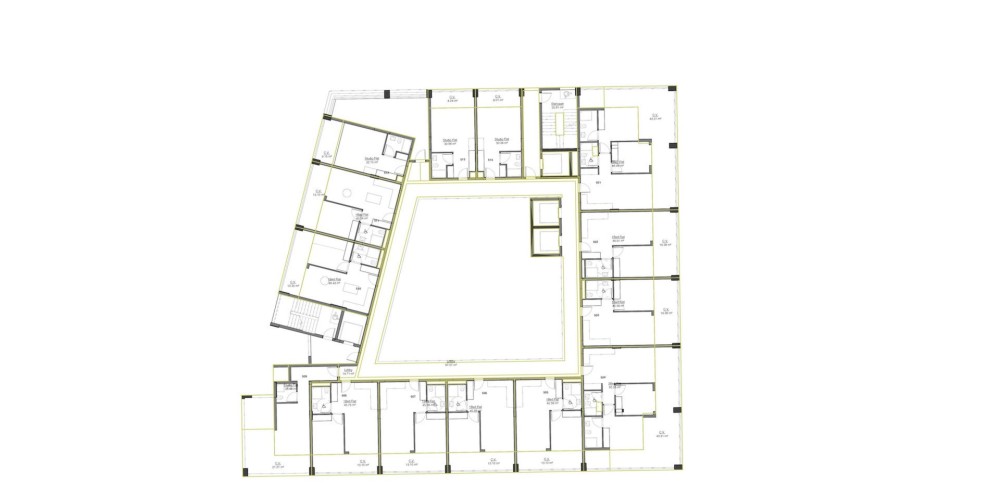
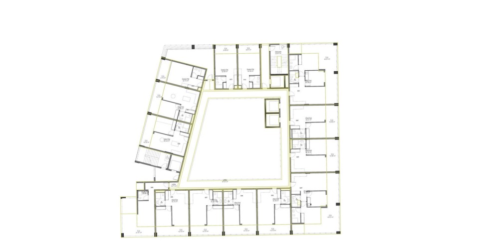
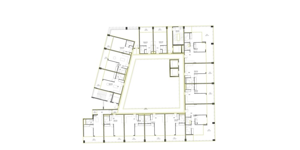
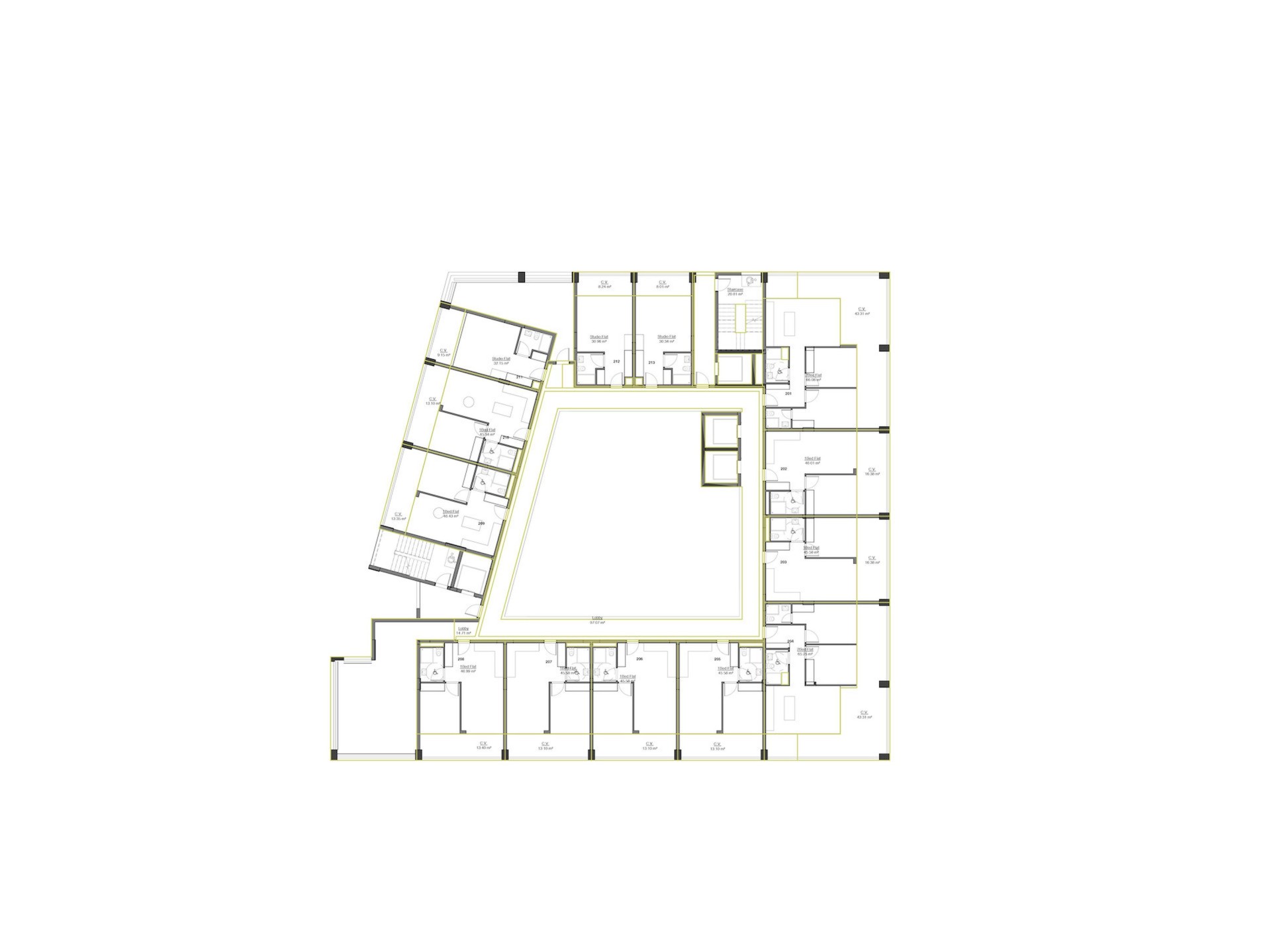
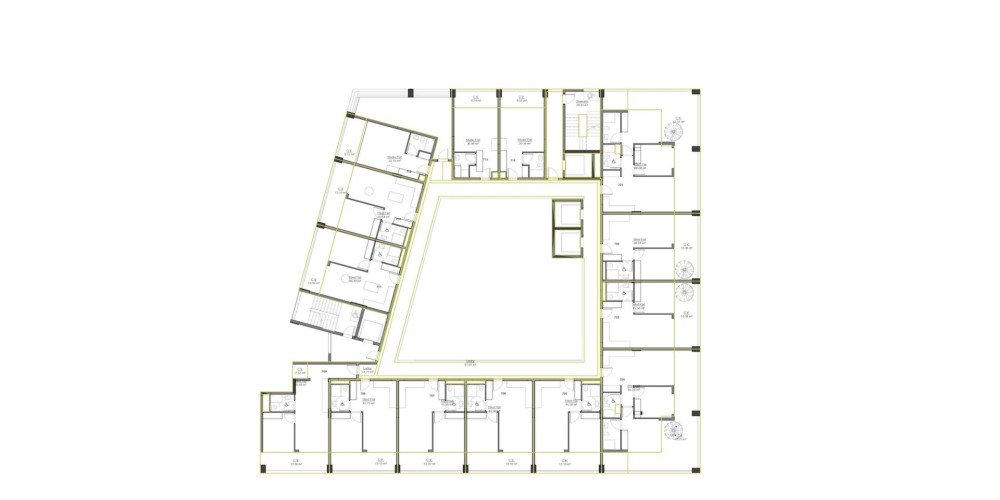
T147 - Современный жилой комплекс картир с удобным доступом к марине Лимассола
Этот современный жилой комплекс, расположенный в динамично развивающемся районе Лимасола, предлагает коллекцию студий, а также квартир с одной и двумя спальнями. Проект тщательно продуман с акцентом на функциональность, современную эстетику и комфорт.
Благодаря расположению всего в нескольких минутах от набережной и ключевых городских узлов, резиденты получают легкий доступ к марине Лимасола, деловым районам, местам отдыха и всей необходимой инфраструктуре. В то же время комплекс сохраняет атмосферу приватности и спокойствия, создавая гармоничную жилую среду в одной из самых перспективных локаций города.
Благодаря отличной транспортной доступности, проект объединяет в себе современный дизайн, удобство и энергию прибрежного города.
Проект имеет сертификат энергоэффективности Class "A".




















