S158 - Квартиры в районе My Mall и нового казино в Лимассоле
Статус недвижимости:
Строительство завершено
Расположение:
Кипр, Лимассол, недалеко от нового морского порта
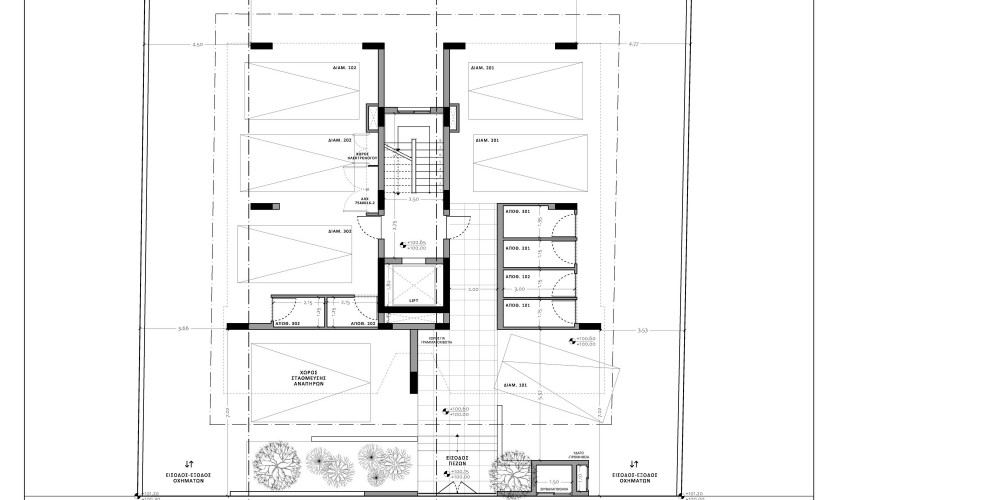
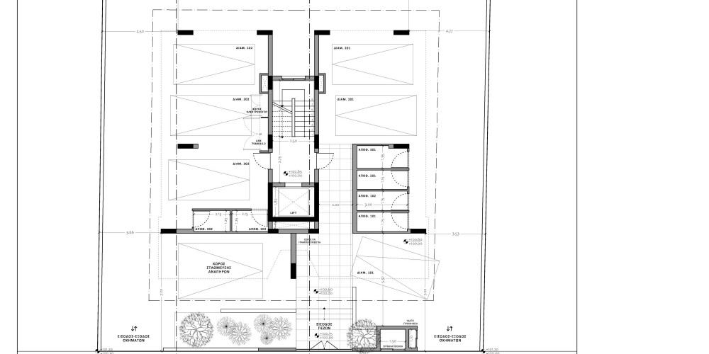
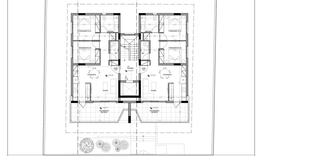
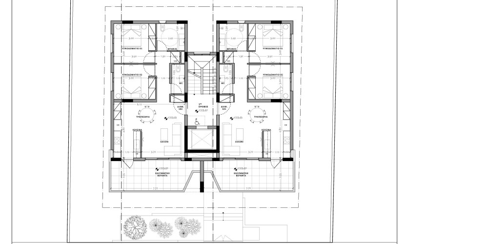
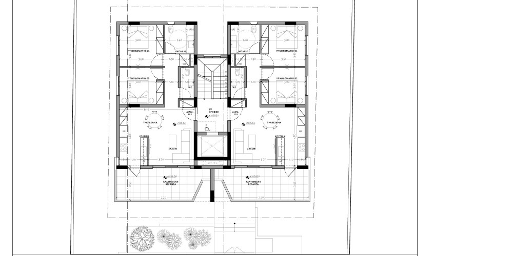
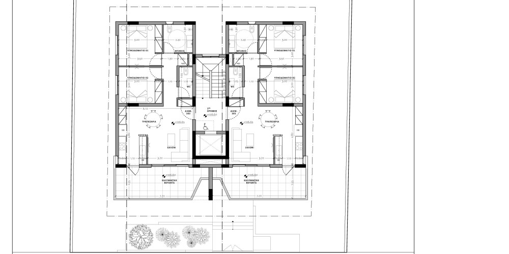
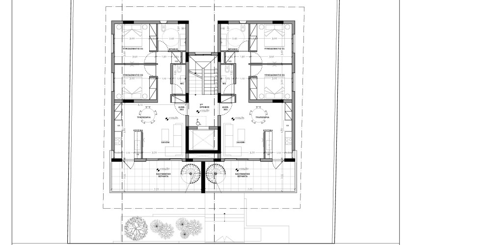
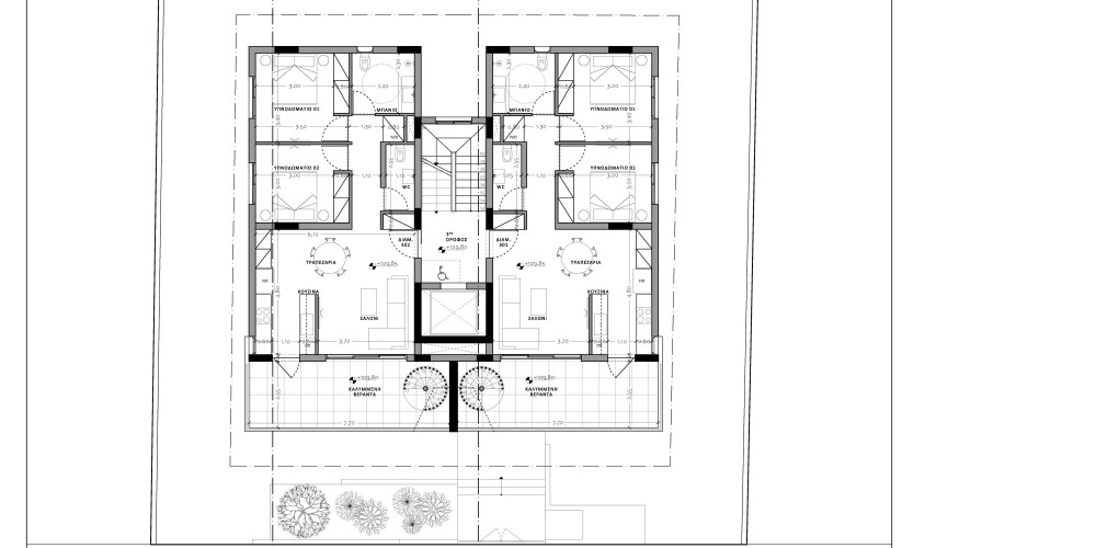
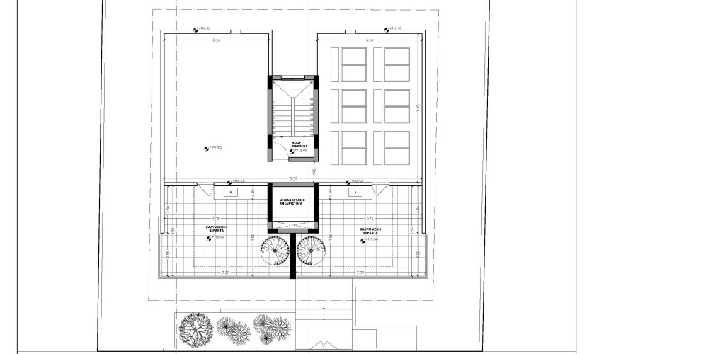
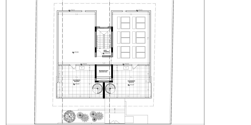
Проект расположен на западной части Лимассола в тихом районе, в окружении всех удобств. Это трехэтажное здание на каждом этаже будет иметь по две квартиры с двумя спальнями, а жители квартир на третьем этаже будут наслаждатся своим садом на крыше.
Жилые помещения, а именно гостиная, столовая и кухня, расположены со стороны улицы, а зоны для отдыха...
Проект расположен на западной части Лимассола в тихом районе, в окружении всех удобств. Это трехэтажное здание на каждом этаже будет иметь по две квартиры с двумя спальнями, а жители квартир на третьем этаже будут наслаждатся своим садом на крыше.
Жилые помещения, а именно гостиная, столовая и кухня, расположены со стороны улицы, а зоны для отдыха расположены на задней стороне здания.
Каждая квартира будет иметь крытое парковочное место и кладовую на первом этаже.
Проект имеет сертификат энергоэффективности Class "B".
Площади и Цены
Юниты проданы либо зарезервированы.
Продано & Зарезервировано
101
- Апартаменты
Спальни:
2
Площадь:
101 m2
Продано
102
- Апартаменты
Спальни:
2
Площадь:
101 m2
Продано
201
- Апартаменты
Спальни:
2
Площадь:
101 m2
Продано
202
- Апартаменты
Спальни:
2
Площадь:
101 m2
Продано
301
- Апартаменты
Спальни:
2
Площадь:
143 m2
Продано
302
- Апартаменты
Спальни:
2
Площадь:
103 m2
Продано
Расположение на карте
Схемы и планы
Погода
29
Октября
2025









