S036 - Привлекательный объект для инвестиций в жилом районе Ливадия, Ларнака
Статус недвижимости:
Строительство завершено
Расположение:
Кипр, Ларнака, Ливадия (северо-восточный район Ларнаки)





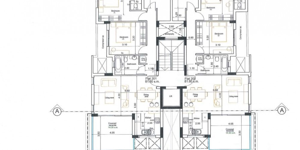
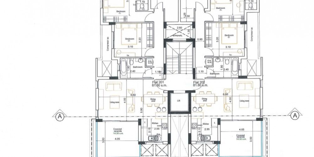
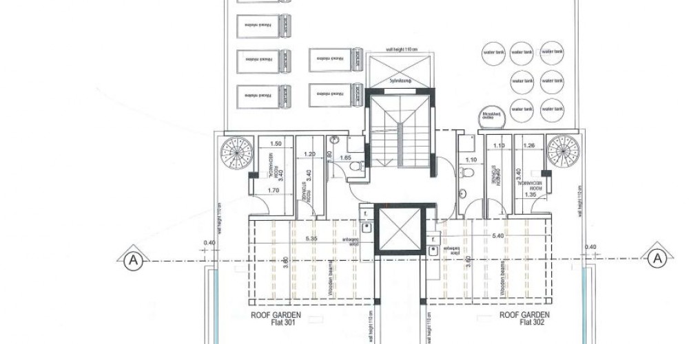
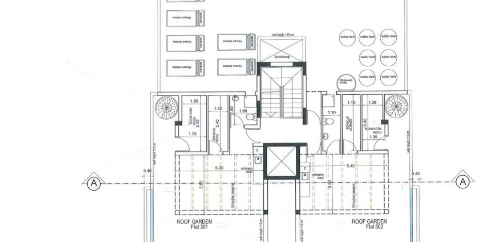
Здание будет состоять из шести квартир с 1 спальней и двух квартир с 2 спальнями на трех этажах. Квартиры на третьем этаже будут иметь частный доступ к большому саду на крыше на 4-м этаже с зоной для барбекю, а также дополнительным туалетом и душем и комнатой, которая может быть преобразована в 3-ю спальню.
Квартиры верхнего этажа будут иметь фото...
Здание будет состоять из шести квартир с 1 спальней и двух квартир с 2 спальнями на трех этажах. Квартиры на третьем этаже будут иметь частный доступ к большому саду на крыше на 4-м этаже с зоной для барбекю, а также дополнительным туалетом и душем и комнатой, которая может быть преобразована в 3-ю спальню.
Квартиры верхнего этажа будут иметь фотоэлектрическую систему.
Проект имеет сертификат энергоэффективности Class "B".
Площади и Цены
Юниты проданы либо зарезервированы.
Продано & Зарезервировано
101-302
- Блок апартаментов
Спальни:
Площадь:
714 m2
Продано
Расположение на карте
Похожие объекты
S599 - Новый проект из квартир в непосредственной близости от Новой Марины и порта в Ливадии, Ларнака
S868 - Многоквартирное здание всего в 5 минутах езды от набережной Финикудес и центра города Ларнака
Заголовок
X





