S387 - Жилое здание из квартир в Ливадии, Ларнака
Статус недвижимости:
Строительство завершено
Расположение:
Кипр, Ларнака, Ливадия (северо-восточный район Ларнаки)



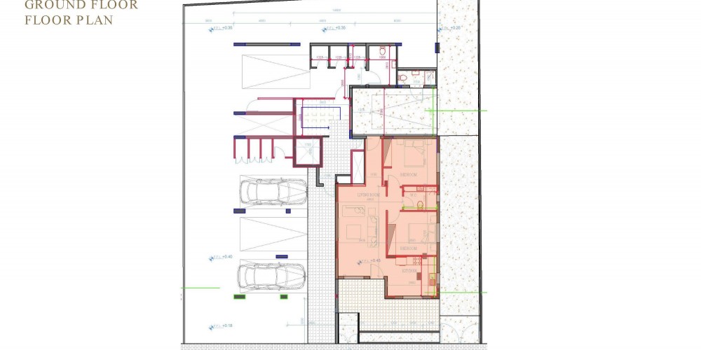
Это двухэтажное здание состоит всего из 5 квартир. В проекте четыре квартиры с 2 спальнями и один пентхаус с 3 спальнями.
Поселок Ливадия – красивое и тихое место, в котором есть все необходимые жителям удобства. Проект находится всего в нескольких минутах езды от центра Ларнаки. Пляж также находится в непосредственной близости.
Прое...
Это двухэтажное здание состоит всего из 5 квартир. В проекте четыре квартиры с 2 спальнями и один пентхаус с 3 спальнями.
Поселок Ливадия – красивое и тихое место, в котором есть все необходимые жителям удобства. Проект находится всего в нескольких минутах езды от центра Ларнаки. Пляж также находится в непосредственной близости.
Проект имеет сертификат энергоэффективности Class "B".
Площади и Цены
Юниты проданы либо зарезервированы.
Продано & Зарезервировано
11
- Апартаменты
Спальни:
2
Площадь:
191 m2
Продано
101
- Апартаменты
Спальни:
2
Площадь:
81 m2
Зарезервировано
102
- Апартаменты
Спальни:
2
Площадь:
81 m2
Зарезервировано
103
- Апартаменты
Спальни:
2
Площадь:
77 m2
Зарезервировано
201
- Пентхаус
Спальни:
3
Площадь:
239 m2
Зарезервировано
Расположение на карте
Похожие объекты
S599 - Новый проект из квартир в непосредственной близости от Новой Марины и порта в Ливадии, Ларнака
S868 - Многоквартирное здание всего в 5 минутах езды от набережной Финикудес и центра города Ларнака
Заголовок
X



