A0327 - Apartments in Zakaki area, Limassol
Property status:
Delivery - Q4 2025
Location:
Cyprus, Limassol, Zakaki (westernmost part of Limassol)
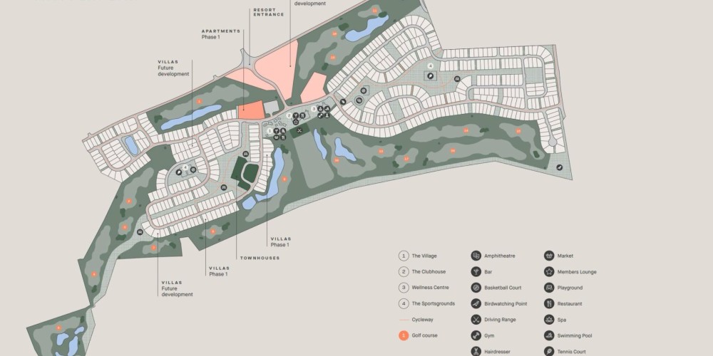
This exclusive resort spans over 140 hectares, featuring a championship 18-hole golf course designed by Cabell Robinson. The course is surrounded by stunning Mediterranean landscapes, including natural ponds, olive and carob trees, and offers a modern club house with a panoramic restaurant and rooftop bar.Residences:
...
This exclusive resort spans over 140 hectares, featuring a championship 18-hole golf course designed by Cabell Robinson. The course is surrounded by stunning Mediterranean landscapes, including natural ponds, olive and carob trees, and offers a modern club house with a panoramic restaurant and rooftop bar.
Residences:
- 500 villas and 250 apartments in a phased development.
- Two apartment blocks with 26 units: two- and three-bedroom layouts plus penthouses.
- Spacious terraces, private gardens for ground-floor units, and panoramic views of the golf course, salt lake, and sea.
Amenities:
- Wellness center with outdoor pool, spa, fitness area, and yoga lawns.
- Sports facilities: tennis courts, basketball court, and 10 km of bike paths.
- Outdoor amphitheater, playgrounds, and community garden.
- 30-meter pool with sun loungers and lounge areas.
A perfect blend of luxury, nature, and Mediterranean charm, just minutes from the resort's clubhouse and amenities.
The Project has EPC certificate with "A" Energy Efficiency Rating.
Area & Prices
A201
- Apartment
Beds:
2
Area:
116 m2
€ 570,000 + VAT
Inside Area:
88 m2
Covered Veranda:
24 m2
Uncovered Veranda:
4 m2
Price per sq.m:
€ 4,914
Parking Place:
1
Swimming Pool:
communal
Additional Information
Green area: 38 sq.m.
×
A202
- Apartment
Beds:
2
Area:
116 m2
€ 570,000 + VAT
Inside Area:
88 m2
Covered Veranda:
24 m2
Uncovered Veranda:
4 m2
Price per sq.m:
€ 4,914
Parking Place:
1
Swimming Pool:
communal
Additional Information
Green area: 38 sq.m.
×
B201
- Apartment
Beds:
2
Area:
116 m2
€ 570,000 + VAT
Inside Area:
88 m2
Covered Veranda:
24 m2
Uncovered Veranda:
4 m2
Price per sq.m:
€ 4,914
Parking Place:
1
Swimming Pool:
communal
Additional Information
Green area: 38 sq.m.
×
B202
- Apartment
Beds:
2
Area:
116 m2
€ 570,000 + VAT
Inside Area:
88 m2
Covered Veranda:
24 m2
Uncovered Veranda:
4 m2
Price per sq.m:
€ 4,914
Parking Place:
1
Swimming Pool:
communal
Additional Information
Green area: 38 sq.m.
×
Map Location
Site Map & Floor Plans
Weather
19
November
2025










