P90 - Apartments in Larnaca Marina area
Property status:
Project delivered
Location:
Cyprus, Larnaca, sea port area
The development is located in Larnaca Marina area, in the town center.
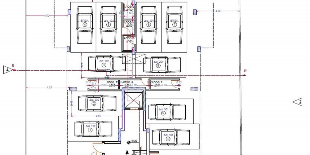
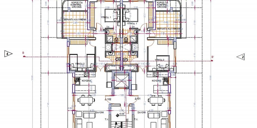
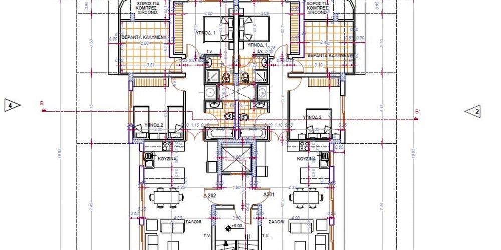
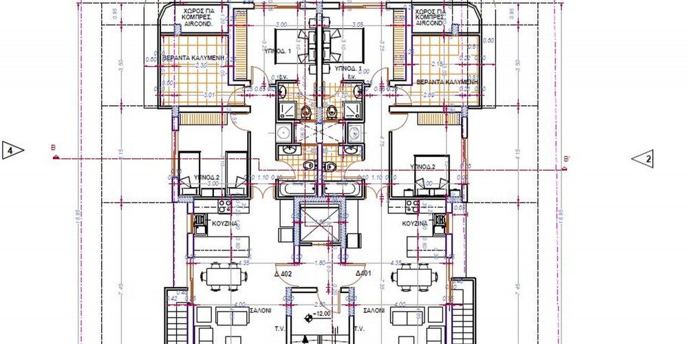
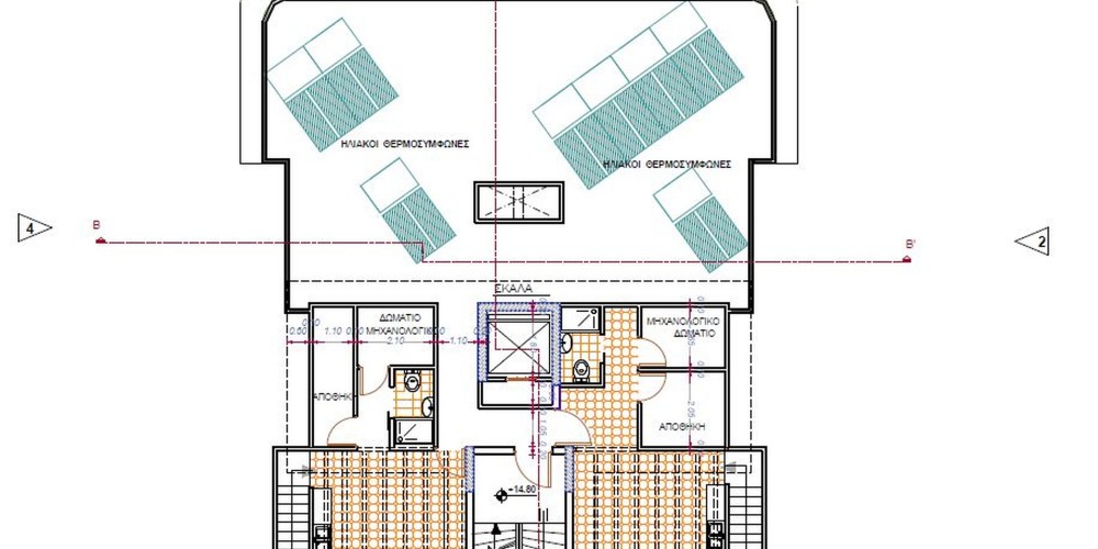
The project consists of eight 2 bedroom and 2 bathroom apartments- all with spacious and contemporary living areas. There are two apartments per floor - ensuring optimum privacy for potential buyers. The two fourth floor apartments benefit from individual private roof-gardens w...
The development is located in Larnaca Marina area, in the town center.
The project consists of eight 2 bedroom and 2 bathroom apartments- all with spacious and contemporary living areas. There are two apartments per floor - ensuring optimum privacy for potential buyers. The two fourth floor apartments benefit from individual private roof-gardens with amazing views of the lovely neighbourhood. Each apartment has one parking space and a storage room on the ground level.
The lovely residential neighbourhood is quiet and family orientated. The project is very near to supermarkets, private schools and with immediate access to highways.
The Project has EPC certificate with "B" Energy Efficiency Rating.
Area & Prices
All units sold or reserved.
Sold & Reserved Properties
101
- Apartment
Beds:
2
Area:
99 m2
Reserved
102
- Apartment
Beds:
2
Area:
99 m2
Reserved
201
- Apartment
Beds:
2
Area:
99 m2
Reserved
202
- Apartment
Beds:
2
Area:
99 m2
Reserved
301
- Apartment
Beds:
2
Area:
99 m2
Sold
302
- Apartment
Beds:
2
Area:
99 m2
Sold
401
- Penthouse
Beds:
2
Area:
146 m2
Sold
402
- Apartment
Beds:
2
Area:
101 m2
Sold
Map Location
Site Map & Floor Plans
Weather
12
November
2025












