S467 - Apartments in Larnaca city
Property status:
Project delivered
Location:
Cyprus, Larnaca, sea port area
The two blocks of apartments are located in the residential area of Larnaca, in a few kilometers from the Larnaca’s port. The apartments will have allocated storage rooms and the parking.
Each block will consist of 3 floors and the apartments will have 2 bedrooms and spacious covered verandas.
The Project has EPC certificate with "B"...
The two blocks of apartments are located in the residential area of Larnaca, in a few kilometers from the Larnaca’s port. The apartments will have allocated storage rooms and the parking.
Each block will consist of 3 floors and the apartments will have 2 bedrooms and spacious covered verandas.
The Project has EPC certificate with "B" Energy Efficiency Rating.
Area & Prices
All units sold or reserved.
Sold & Reserved Properties
A303
- Apartment
Beds:
2
Area:
86 m2
Sold
B201
- Apartment
Beds:
2
Area:
92 m2
Reserved
B301
- Apartment
Beds:
2
Area:
92 m2
Reserved
2-101
- Apartment
Beds:
1
Area:
106 m2
Sold
2-102
- Apartment
Beds:
1
Area:
106 m2
Sold
2-103
- Apartment
Beds:
1
Area:
104 m2
Sold
2-104
- Apartment
Beds:
1
Area:
67 m2
Sold
2-105
- Apartment
Beds:
1
Area:
105 m2
Sold
2-201
- Apartment
Beds:
2
Area:
106 m2
Sold
2-202
- Apartment
Beds:
2
Area:
106 m2
Sold
2-203
- Apartment
Beds:
2
Area:
104 m2
Sold
2-204
- Apartment
Beds:
2
Area:
67 m2
Sold
2-205
- Apartment
Beds:
2
Area:
105 m2
Sold
2-301
- Apartment
Beds:
3
Area:
106 m2
Sold
2-302
- Apartment
Beds:
3
Area:
106 m2
Sold
2-303
- Apartment
Beds:
3
Area:
104 m2
Sold
2-304
- Apartment
Beds:
3
Area:
67 m2
Sold
2-305
- Apartment
Beds:
3
Area:
105 m2
Sold
Map Location
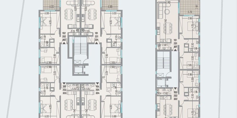
Site Map & Floor Plans
Weather
16
November
2025









