B448 - Апартаменты с общим бассейном и тренажёрным залом в Айос Афанасиос, Лимассол
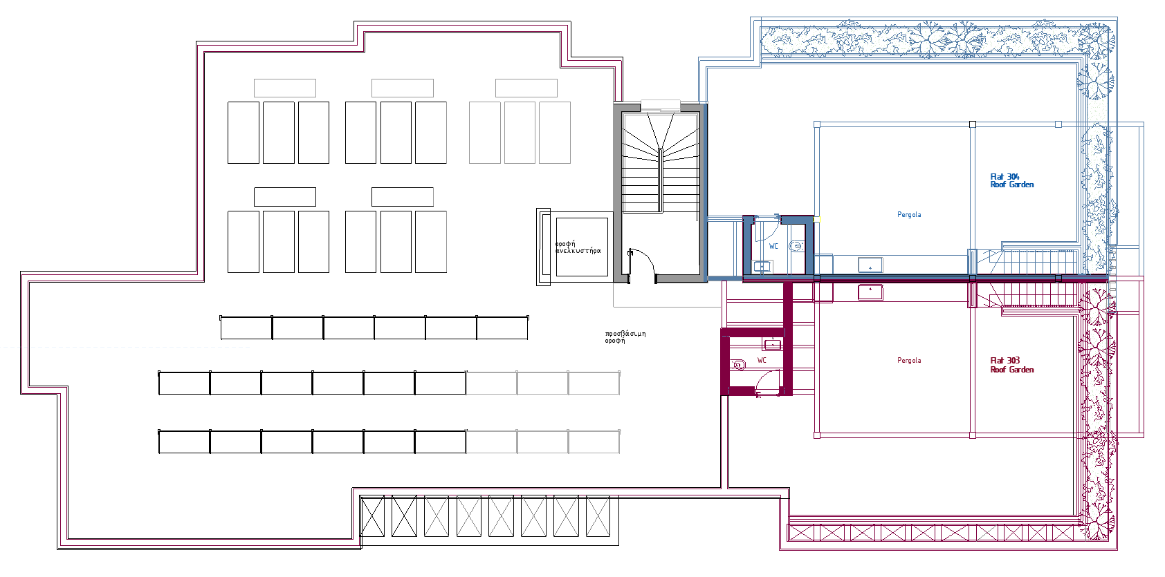
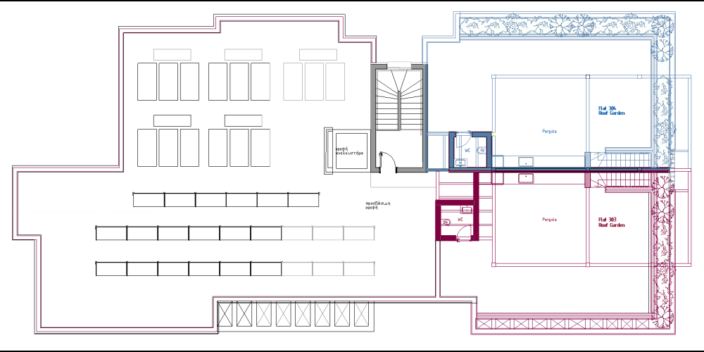
Современный жилой комплекс включает 14 апартаментов в центральной части Айос Афанасиос, Лимассол. В проекте представлены квартиры с 1, 2 и 3 спальнями, включая две апартаменты с частными садами на крыше. Жильцы могут пользоваться премиальными удобствами, такими как общий бассейн и тренажёрный зал, обеспечивая комфортный и удобный образ жизни. Построено с использованием высококачественных материалов и отделки, проект сочетает элегантный дизайн с современными функциональными решениями.
Основные характеристики проекта и апартаментов:
• Всего четырнадцать апартаментов
• Выбор апартаментов с 1, 2 и 3 спальнями
• Две квартиры с частными садами на крыше
• Общий бассейн
• Тренажёрный зал для жителей
• Центральное расположение в Айос Афанасиос, Лимассол
• Высококачественное строительство и отделка
Проект имеет сертификат EPC с рейтингом энергоэффективности “A”.
















