A0363 - Modern residential apartment complex in the Universal Area, Paphos
The residential complex is located in the heart of the Universal area, close to the center of Paphos and its main tourist attractions. It is one of the quietest neighborhoods, surrounded by green areas. Within walking distance, you will find a supermarket, pharmacy, restaurants, and other essential amenities.
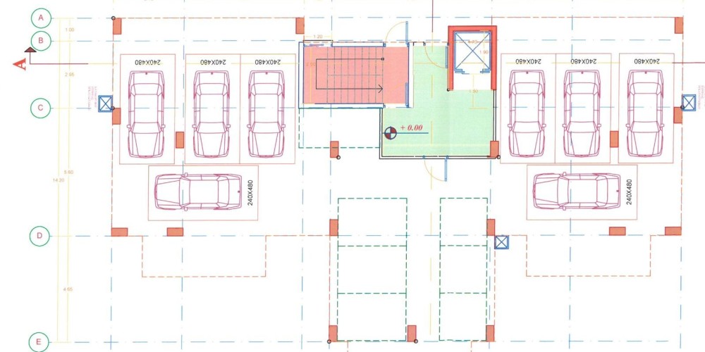
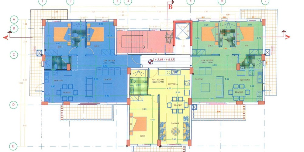
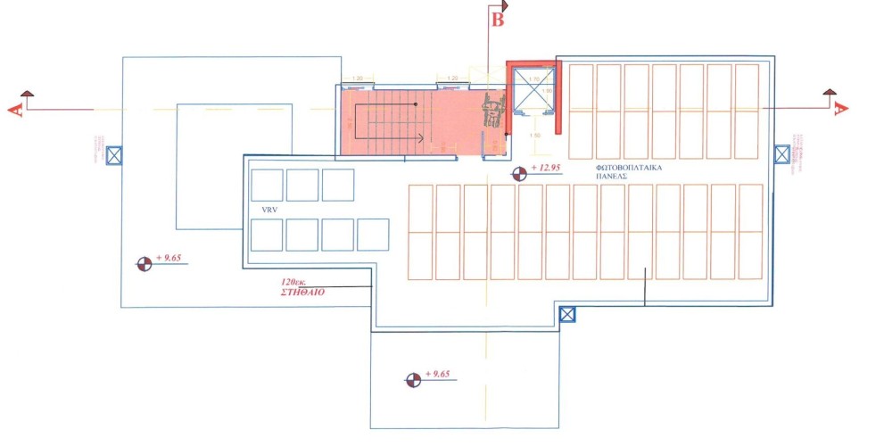
The complex is a modern three-story development built to high standards with premium-quality finishes. It consists of three separate buildings with a swimming pool at the center. The project features 21 apartments: 6 one-bedroom units, 12 two-bedroom units, and 3 penthouses with spacious terraces, offering the option to install a jacuzzi or a private pool. All apartments boast a well-thought-out layout, large balconies, storage rooms, and a covered parking space for each unit.
The Project has EPC certificate with "B" Energy Efficiency Rating.





































