S445 - A modern 3-story apartment building in central Paphos
Property status:
Project delivered
Location:
Cyprus, Paphos, city center
A modern 3 story apartment building in central Paphos. It comprises of 21 apartment with 1 and 2 bedrooms and penthouses.The contemporary design features sleek interiors, roof gardens, and balconies with stunning views of the city and sea.Conveniently located near amenities, the project offers an affordable and comfortable lifestyl...
A modern 3 story apartment building in central Paphos. It comprises of 21 apartment with 1 and 2 bedrooms and penthouses.
The contemporary design features sleek interiors, roof gardens, and balconies with stunning views of the city and sea.
Conveniently located near amenities, the project offers an affordable and comfortable lifestyle, combining urban living with natural beauty.
Fully furnished package and rental guarantee proposals are available.
The Project has EPC certificate with "A" Energy Efficiency Rating.
Area & Prices
206
- Apartment
Beds:
2
Area:
75 m2
€ 227,000 + VAT
Inside Area:
61 m2
Covered Veranda:
14 m2
Price per sq.m:
€ 3,027
Additional Information
×
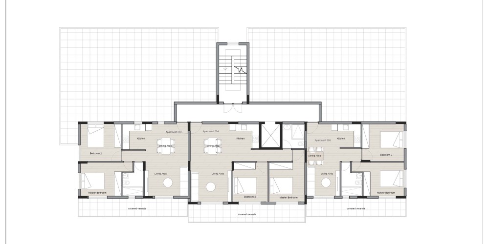
304
- Apartment
Beds:
2
Area:
127 m2
€ 248,000 + VAT
Inside Area:
67 m2
Covered Veranda:
5 m2
Uncovered Veranda:
55 m2
Price per sq.m:
€ 1,953
Additional Information
Uncovered veranda includes roof garden 39 sq.m.
×
GF1
- Apartment
Beds:
1
Area:
58 m2
€ 168,000 no VAT
Inside Area:
42 m2
Covered Veranda:
16 m2
Price per sq.m:
€ 2,897
Additional Information
×
GF4
- Apartment
Beds:
1
Area:
58 m2
€ 168,000 no VAT
Inside Area:
42 m2
Covered Veranda:
16 m2
Price per sq.m:
€ 2,897
Additional Information
×
Sold & Reserved Properties
101
- Apartment
Beds:
1
Area:
51 m2
Sold
102
- Apartment
Beds:
2
Area:
78 m2
Sold
103
- Apartment
Beds:
2
Area:
78 m2
Sold
104
- Apartment
Beds:
2
Area:
83 m2
Sold
105
- Apartment
Beds:
2
Area:
71 m2
Sold
106
- Apartment
Beds:
2
Area:
70 m2
Sold
107
- Apartment
Beds:
1
Area:
51 m2
Sold
201
- Apartment
Beds:
1
Area:
51 m2
Sold
202
- Apartment
Beds:
2
Area:
75 m2
Sold
203
- Apartment
Beds:
2
Area:
78 m2
Sold
204
- Apartment
Beds:
2
Area:
83 m2
Sold
205
- Apartment
Beds:
2
Area:
71 m2
Sold
207
- Apartment
Beds:
1
Area:
51 m2
Sold
301
- Apartment
Beds:
2
Area:
180 m2
Sold
302
- Apartment
Beds:
2
Area:
83 m2
Sold
303
- Apartment
Beds:
2
Area:
171 m2
Sold
305
- Apartment
Beds:
2
Area:
131 m2
Sold
GF2
- Apartment
Beds:
2
Area:
68 m2
Sold
GF3
- Apartment
Beds:
2
Area:
61 m2
Sold
1Bld
- Block of apartments
Beds:
Area:
1431 m2
Sold
Map Location
Site Map & Floor Plans
Weather
30
November
2025













