B234 - Modern office spaces in the heart of Paphos
This commercial development offers flexible office units in a strategic central location in Paphos, designed to support long-term business growth. Preliminary lease agreements are now open for select tenants. With modern architecture, sea views, and high-spec technological infrastructure, the building is designed to meet the needs of companies seeking a contemporary work environment.
Offices are available in shell & core condition, allowing tenants to personalize the space in line with their operational requirements and branding. Fit-out services are available upon request. The building is supported by reliable power supply systems, dual internet providers, and advanced access control and security features.
Conveniently located within close reach of Paphos International Airport, the highway to Limassol, and the city’s commercial core, the project ensures excellent connectivity for staff and clients. On-site dining facilities and proximity to restaurants and amenities contribute to a well-rounded work-life experience.
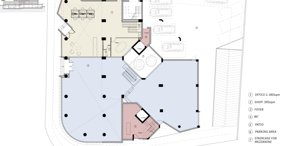
The main features of the project and the units:
- Long-term lease agreements (minimum 5 years)
- Base rent from €45/sqm/month
- Units starting from 155 sqm
- Shell & core condition
- Fit-out available upon request
- Face ID access control system
- 24/7 security and video surveillance
- UPS-protected critical systems
- TIER II server room with tenant equipment space
- Fiber-optic internet infrastructure
- Dual telecom service providers
- EV charging station
- On-site restaurant and café
- 20 minutes from Paphos International Airport
- 6 minutes to Limassol highway
Surrounded by businesses and amenities in Paphos commercial district


















