B279 - 1- and 2-bedroom apartments in Livadia, Larnaca
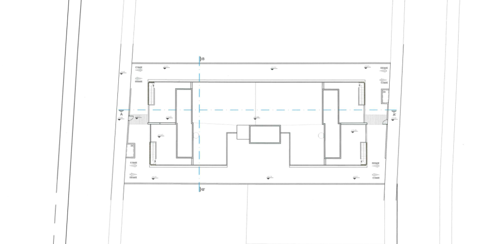
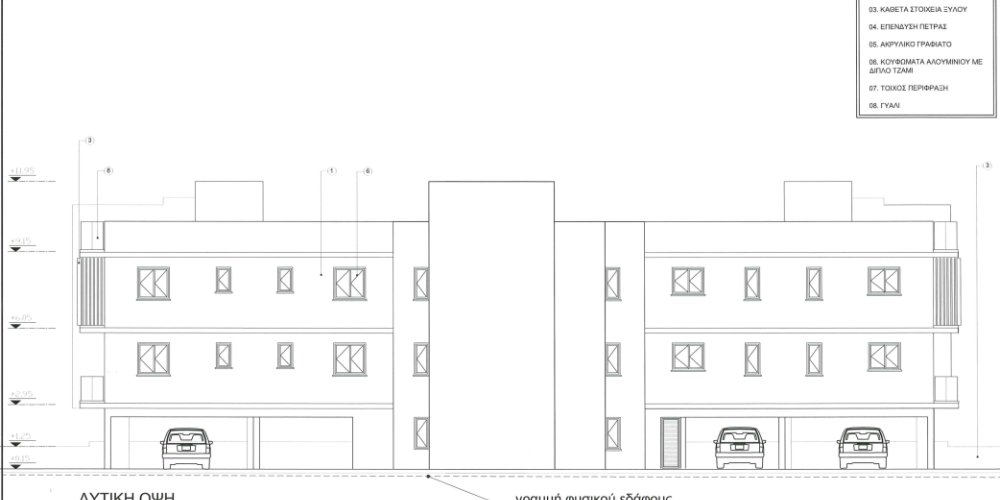
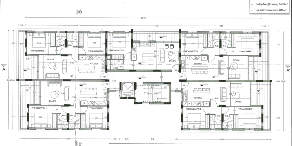
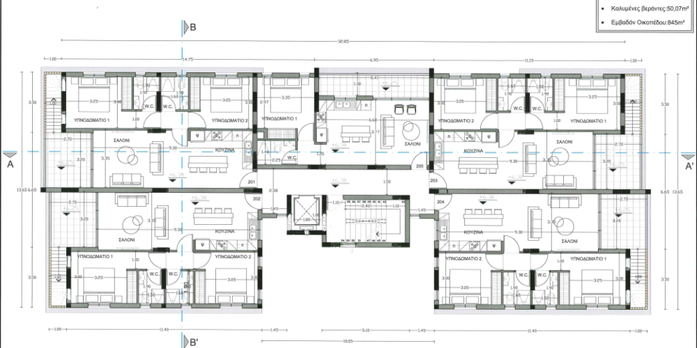
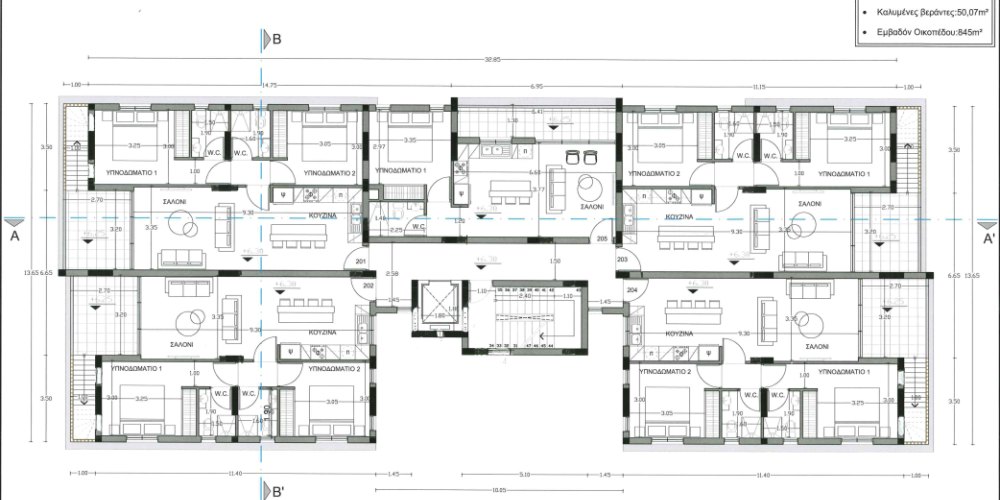
This low-rise residential building consists of ten thoughtfully designed apartments, including eight two-bedroom units and two one-bedroom units. The layout prioritizes comfort and efficient use of space, while the selection of materials ensures long-term functionality and durability.
The development is situated in Livadia, Larnaca, just a short distance from the coastline. Residents benefit from close access to everyday conveniences such as supermarkets, cafés, and schools, all within walking or short driving distance. The location also provides easy connectivity to educational institutions and urban infrastructure, making it suitable for both families and professionals.
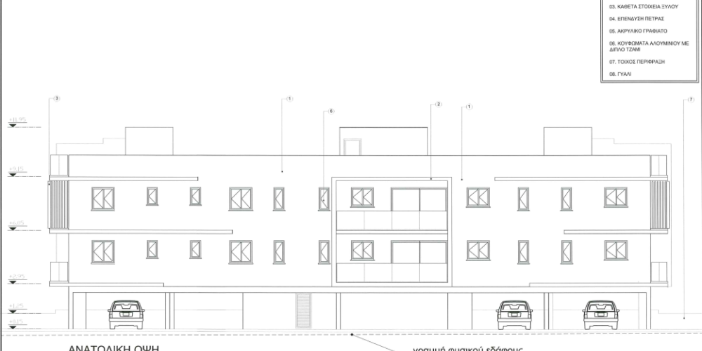
Set in a quiet residential environment, the building offers a calm setting while remaining well-connected to essential amenities. Construction focuses on ergonomic interior planning and the application of high-standard finishes across all units.
The main features of the project and the units:
- 10 apartments (8 two-bedroom and 2 one-bedroom)
- Located in Livadia, Larnaca
- 5-minute drive to the beach
- Close to supermarkets, cafés, bakeries, schools, and universities
- Quiet residential setting
- Contemporary layout with ergonomic planning
- High-quality construction materials
The project has an EPC certificate with “A” energy efficiency rating.
Additional Information
Additional Information
Additional Information
Additional Information
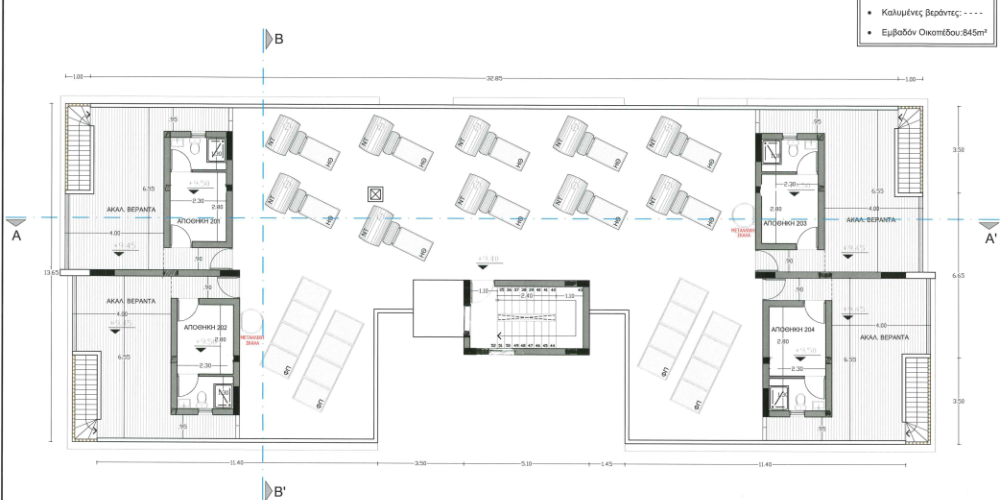
Uncovered balcony, Roof Garden
Additional Information
Uncovered balcony, Roof Garden
Additional Information
Uncovered balcony, Roof Garden
Additional Information
Uncovered balcony, Roof Garden




















