R25 - Villas in Livadia, Larnaca
Property status:
Project delivered
Location:
Cyprus, Larnaca, Livadia (north-eastern district of Larnaca)







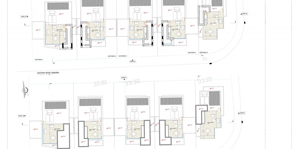
A complex comprising of five 3 bedroom individually designed villas. The villas are set on elevated ground with scenic views of the surrounding area.
The villas come complete with private swimming pool, covered parking, shaded veranda area and very comfortable living spaces including roof garden (optional).
The fittings are all...
A complex comprising of five 3 bedroom individually designed villas. The villas are set on elevated ground with scenic views of the surrounding area.
The villas come complete with private swimming pool, covered parking, shaded veranda area and very comfortable living spaces including roof garden (optional).
The fittings are all of high standard and include Italian kitchen, granite worktops, high end sanitary ware and external HPL decorative coverings.
Conveniently situated very near to local amenities and with very easy access to Larnaca, local beaches and the highway network.
The Project has EPC certificate with "B" Energy Efficiency Rating.
Area & Prices
All units sold or reserved.
Sold & Reserved Properties
1
- Villa
Beds:
3
Area:
191 m2
Sold
2
- Villa
Beds:
3
Area:
176 m2
Sold
3
- Villa
Beds:
3
Area:
176 m2
Sold
4
- Villa
Beds:
3
Area:
176 m2
Sold
5
- Villa
Beds:
3
Area:
161 m2
Sold
Map Location
Related Projects
R24 - Coastal apartments in Livadia near Larnaca are perfect for those seeking a beachfront lifestyle
S599 - New residential development of apartments in close proximity to the New Marina and Port in Livadia, Larnaca
Заголовок
X


