B283 - Studios and 1-bedroom apartments in Livadia, Larnaca
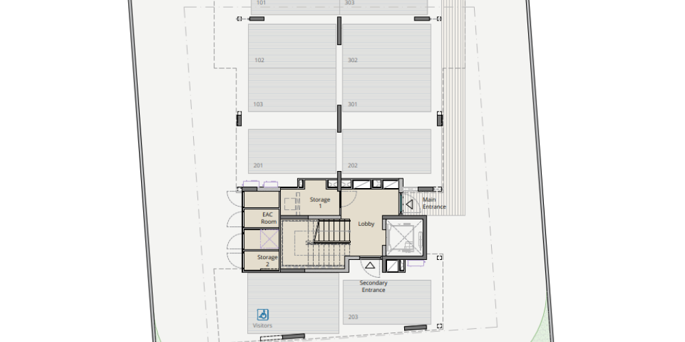
This three-story residential development offers a total of nine thoughtfully arranged apartments, combining efficient layouts with practical design. The building’s architecture features clean lines, neutral colors, and large windows that allow natural light to fill each unit.
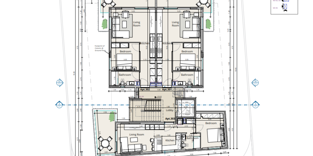
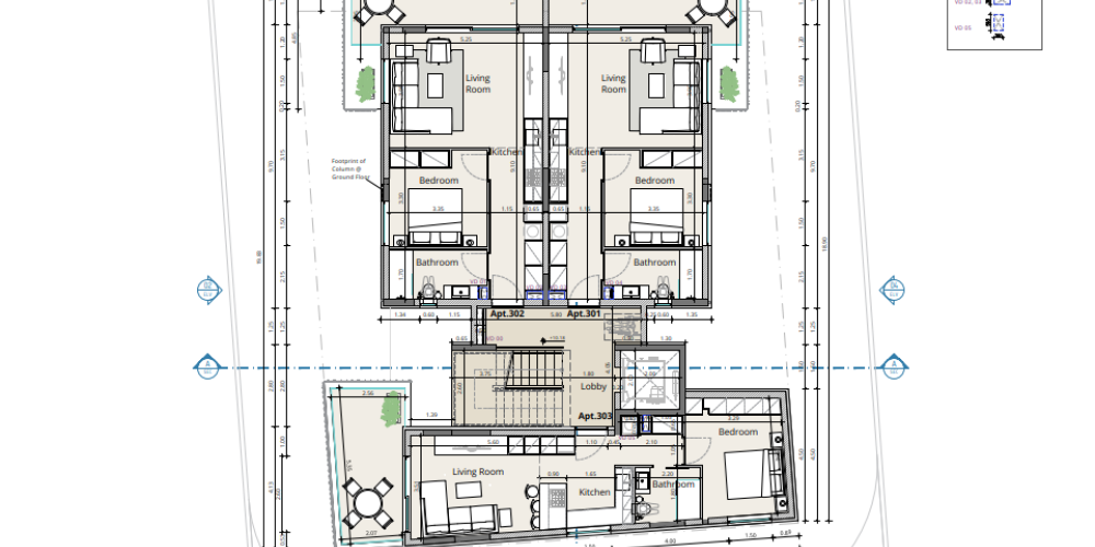
Each of the first two floors includes two one-bedroom apartments with an open-plan kitchen and living area, a full bathroom, and a private balcony. These units are designed to support everyday comfort, providing well-proportioned spaces for singles or couples.
In addition to the one-bedroom units, the second and third floors also include a studio apartment per floor. Each studio offers a compact layout with a combined living, dining, and sleeping area, a modern kitchenette, a separate bathroom, and access to a balcony for outdoor relaxation.
The exterior design of the building reflects a modern aesthetic with minimalist details. Inside, the focus is on simplicity and functionality. Shared access points include a communal entrance, an internal staircase, and a lift. The development also offers covered parking and provisions for air conditioning and photovoltaic panels.
Set within walking distance of schools, public transport, and daily amenities, and located just 900 meters from the sea, this building is positioned to offer convenience within a residential setting.
The main features of the project and the units:
- Three-story building with nine apartments
- Six one-bedroom units and three studios
- Open-plan layouts with private balconies
- Covered parking spaces
- Elevator access
- Provision for air conditioning
- Provision for solar photovoltaic panels
- Gated complex
- 900 m to the sea
- 1 km to public transport and amenities
- 500 m to schools
- 20 km to the airport
The project has an EPC certificate with “A” energy efficiency rating.








