S036 - Prime investment opportunity: Residential building in Livadia, Larnaca
Property status:
Project delivered
Location:
Cyprus, Larnaca, Livadia (north-eastern district of Larnaca)





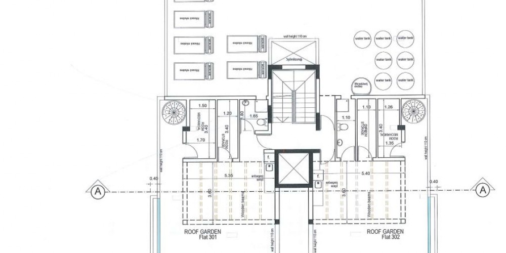
The building will consist of six 1-bedroom apartments and two 2-bedroom apartments over three floors. The third-floor units will enjoy private and individual access to a large roof garden on the 4th floor with its barbeque area, as well as an extra toilet and shower and room that can be converted into 3rd bedroom.
The top floor uni...
The building will consist of six 1-bedroom apartments and two 2-bedroom apartments over three floors. The third-floor units will enjoy private and individual access to a large roof garden on the 4th floor with its barbeque area, as well as an extra toilet and shower and room that can be converted into 3rd bedroom.
The top floor units will have net metering and a photovoltaic system.
The Project has EPC certificate with "B" Energy Efficiency Rating.
Area & Prices
All units sold or reserved.
Sold & Reserved Properties
101-302
- Block of apartments
Beds:
Area:
714 m2
Sold
Map Location
Related Projects
R24 - Coastal apartments in Livadia near Larnaca are perfect for those seeking a beachfront lifestyle
S599 - New residential development of apartments in close proximity to the New Marina and Port in Livadia, Larnaca
Заголовок
X





